Quadrilocale in vendita

Roma, Via Achille Loria - Fleming
€ 319.000
4 locali 4 locali
125 Mq 125 Mq
2 bagni 2 bagni

Quadrilocale in vendita

Roma, Via Achille Loria - Fleming

Descrizione annuncio

FLEMING - VIA ACHILLE LORIA

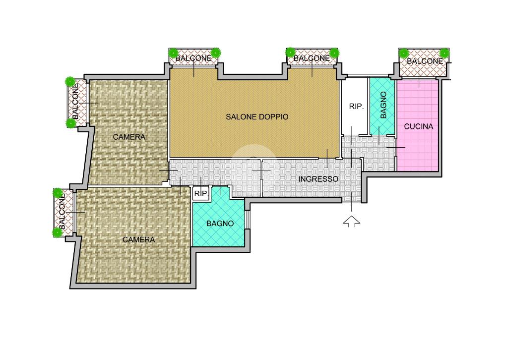
Nel quartiere Fleming, in contesto residenziale signorile e ben servito, proponiamo in vendita NUDA PROPRIETA' di un appartamento di circa 125 mq, posto al primo piano di uno stabile elegante.

L’immobile si apre su un ampio ingresso che conduce a un salone doppio, caratterizzato da ambienti spaziosi e ben distribuiti, ideali per realizzare una zona living luminosa e accogliente. La cucina separata completa la zona giorno e dispone nelle immediate vicinanze di una cameretta di servizio con il proprio bagno, soluzione funzionale che può essere utilizzata anche come studio o spazio multifunzionale.

La zona notte è composta da due ampie camere matrimoniali e un secondo bagno, con una distribuzione degli ambienti che garantisce comfort e privacy.

L’appartamento gode di una doppia esposizione ed è valorizzato dalla presenza di cinque balconi, che servono ogni stanza della casa e assicurano ottima luminosità naturale e gradevoli affacci, rendendo gli ambienti ariosi durante tutto l’arco della giornata.

Completa la proprietà una cantina, utile come spazio accessorio per deposito.

Soluzione particolarmente interessante per uso investimento, grazie alla generosa metratura e alla posizione in uno dei quartieri residenziali più apprezzati della zona nord della città.

PER PRENOTARE IL TUO APPUNTAMENTO PUOI MANDARE UN MESSAGGIO WHATSAPP AL 333.9550330

Mostra tutto

Nelle vicinanze

Trasporto pubblico Trasporto pubblico
Vigna Clara
Vigna Clara
320 m
Tor di Quinto
Tor di Quinto
1,6 Km
Pinturicchio
Pinturicchio
1,6 Km
Tiziano/XVII Olimpiade
Tiziano/XVII Olimpiade
1,6 Km
Flaminia/Nitti
Flaminia/Nitti
120 m
Ricariche auto elettriche Ricariche auto elettriche
Roma Due Ponti Sporting Club | EnelX
1,5 Km
Roma Palazzetto Dello Sport | EnelX
1,9 Km
Roma Mancini | EnelX
1,9 Km
Scuole Scuole
Istituto scolastico Gesù-Maria
170 m
Scuole
620 m
IC Goffredo Petrassi
1,1 Km
Istituto Aurelia Fevola
1,1 Km
Scuola Nazionale dell'Amministrazione
1,2 Km
Farmacia Farmacia
Farmacia Rallo
120 m
Farmacia Pugnaloni
340 m
Bevagna
430 m
Farmacia Ponte Milvio
1,1 Km
Farmacia
1,6 Km
Ospedali Ospedali
Nuova Villa Claudia Casa di Cura convenzionata
680 m
Ospedali
710 m
Onlus Fondazione Don Carlo Gnocchi
1,2 Km
Ospedale San Pietro Fatebenefratelli
2,6 Km
Villa Stuart
2,7 Km
Supermercati Supermercati
Carrefour
260 m
Tuodì
330 m
Conad
510 m
Punto Simply
940 m
Coop
1,1 Km
Negozi Negozi
Merceria GA.N.TEX
190 m
Roma Golf Center
1,0 Km
Panificio Nazzareno
1,1 Km
Supermercato
1,3 Km
Alimentari
1,6 Km
Bar Bar
Profumo Spazio Sensoriale
1,0 Km
L' Altro Chiosco
1,2 Km
Punto Bar
2,1 Km
Il Bosco delle Fragole
2,1 Km
Chalet nel Bosco
2,2 Km
Ristoranti Ristoranti
aRoma Hostaria
340 m
l'Acquolina
480 m
L'Ortica
510 m
Natalino e Maurizio
530 m
T-Bone Station
560 m
Mostra tutto

Caratteristiche

Rif.:
61190702
Piano:
1 di 5 con ascensore (Piano basso)
Balconi:
5
Camere da letto:
2
Arredamento:
Assente
Condizionamento:
Autonomo
Mostra tutto
Prezzo Prezzo
€ 319.000
Rata mutuo Rata mutuo
€ 1.490 / mese
Spese annue Spese annue
€ 1.080
Proponi il tuo prezzoProponi il tuo prezzo

Classe Energetica

G
G
G
G
G
G
G
G
G
EP globale non rinnovabile:
175.00 kW h/m² anno
EP globale rinnovabile:
175.00 kW h/m² anno
EP invernale del fabbricato:
EP estiva del fabbricato:
Anno di costruzione:
1960
Riscaldamento:
Autonomo
Tipo impianto:
A radiatori
Tipo alimentazione:
Metano

Ti interessa visionare l'immobile?

Fissa un appuntamento  Fissa un appuntamento

Richiedi informazioni

Clicca su Leggi per aprire l'informativa
* Questi campi sono obbligatori

Calcola il tuo mutuo

Semplice e senza impegno
Anticipo

( % )
Mutuo

( % )

pochi semplici passi

inserisci i tuoi dati
Questionario completato
Grazie per aver richiesto un appuntamento senza impegno con un nostro Consulente del Credito e Assicurativo.

Hai inserito correttamente tutti i dati necessari e a breve riceverai una e-mail con un link da convalidare per inviare i tuoi dati.
Affiliato
Collina Fleming 2 Srl
Via Flaminia, 649 00191 Roma (RM)

Il nostro staff


  • Valerio Cecchini
    Affiliato

  • Andrea Ciulla
    Collaboratore

  • Benedetta Donati
    Coordinatrice

  • Giorgia De Simoni
    Coordinatrice

  • Riccardo Maffei
    Responsabile
Via Flaminia, 649 00191 Roma (RM)
Zona: Fleming-Vigna Stelluti
Mostra su mappa
Orari: Dal lunedì al venerdì, ORARIO CONTINUATO: 09.00 - 20.00; sabato 09.00 - 18.00 - domenica mattina su appuntamento.
Affiliato
Collina Fleming 2 Srl
Via Flaminia, 649 00191 Roma (RM)

2026 Tecnocasa Franchising S.p.A. - P. IVA 08365160152 - Via Monte Bianco 60/A 20089 Rozzano (MI). Ogni agenzia ha un proprio titolare ed è autonoma. Privacy policy | Policy utilizzo | Cookie policy